コンテンツへスキップ
遊家堂

遊家堂

こころの感じられる家づくり・リフォーム

  • 遊家堂(主にリノベーション)
  • 土壁 ・ 古民家
  • 住宅省エネルギー性能証明書
  • お客様の声
  • 会社概要

カテゴリー: 今日のプランやパース

ほぼ毎日描いているプランやパースなどを、描いたらすぐに、ほぼ毎日投稿していきます。

投稿日: 2023年3月11日2023年3月11日

玄関検討

玄関の検討案です。隣地からの視線を遮りながら明るさも取り入れています。

投稿日: 2023年3月9日2023年3月10日

土間とスキップフロアの家

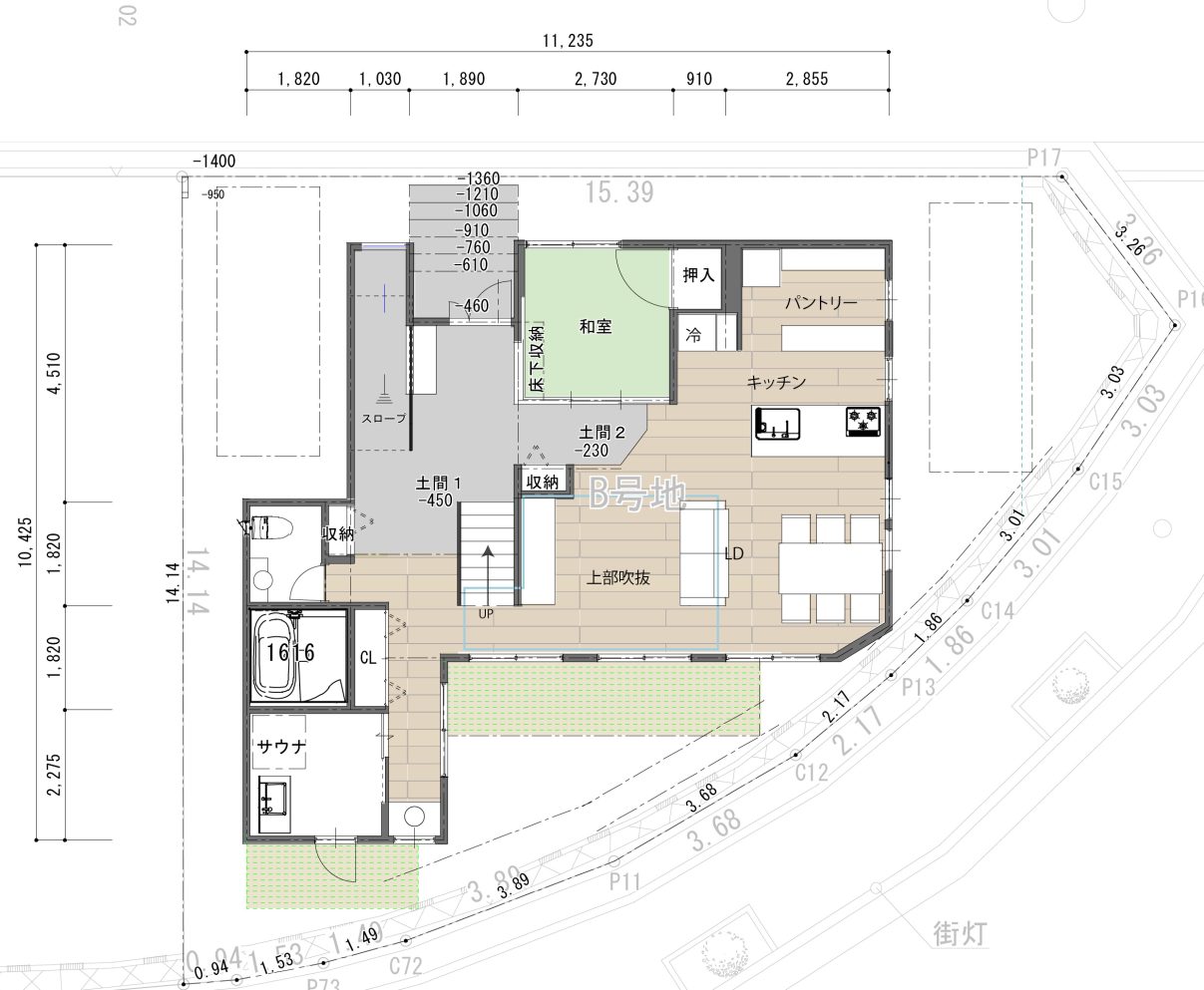
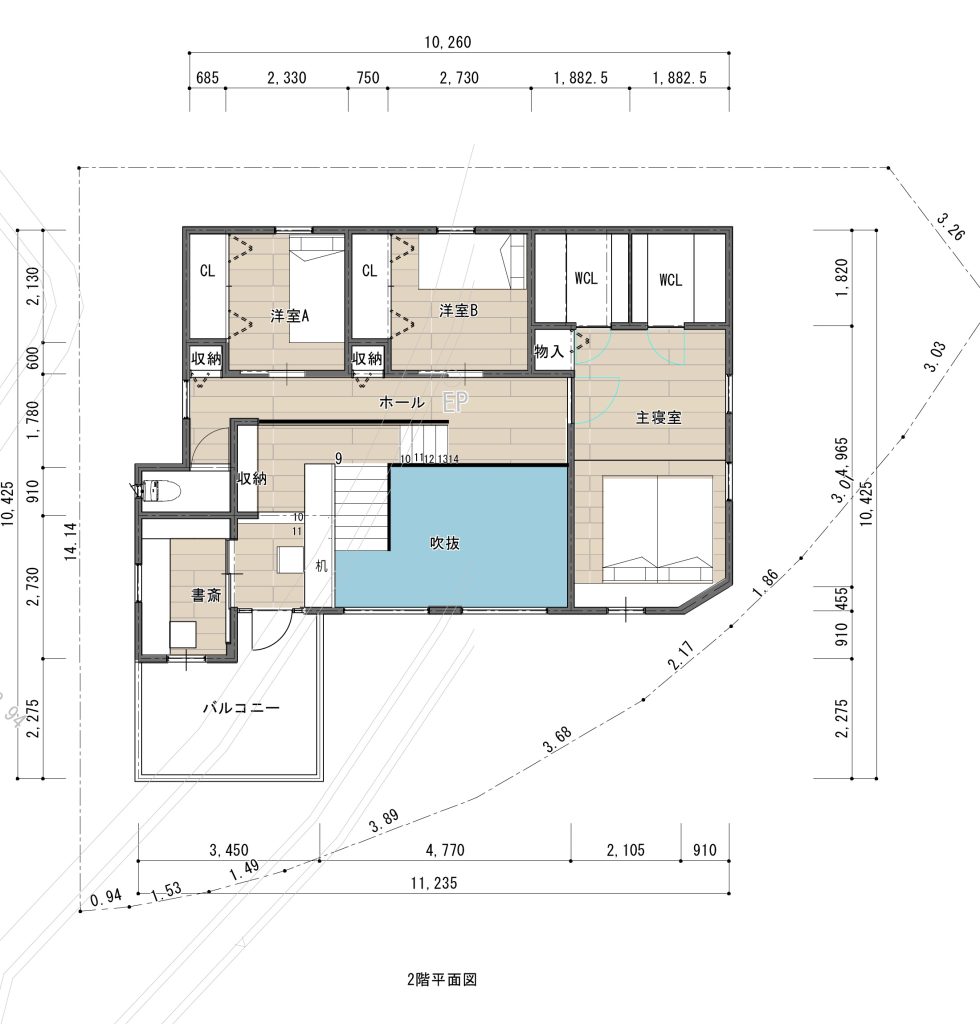
1F

土間とスキップフロアのお住まいをご提案しました。別のスキップフロア案をご採用頂くことになったので、ご紹介させて頂きます。中2階に書斎があります。

投稿日: 2023年3月3日2023年3月3日

広いバルコニーに面するリビング

広いバルコニーに面するリビングを検討しています。

投稿日: 2023年2月28日2023年2月28日

変わり床

変わり床を検討しています。モダンと和のバランスに気を遣います。

投稿のページ送り

前のページ 固定ページ 1 … 固定ページ 14 固定ページ 15 固定ページ 16 … 固定ページ 21 次のページ

インスタグラム

遊家堂のインスタグラム

https://www.instagram.com/yukado.r/?hl=ja

代表のインスタグラム

https://www.instagram.com/toshi.kashi/?hl=ja

※本業に集中するためホームページは最低限の内容にしています。ご不明点はお電話かメールでお問い合わせください。(インスタはなるべく更新することに取り組んでいます)

検索

TV電話・チャット:https://m.me/yukadosora

フェイスブック:https://www.facebook.com/yukadosora

動画記事

スケッチを描きながらプラン考え中です
長期優良リフォーム補助金 解説1

パース

スケッチを描きながらプラン考え中です
子供部屋リフォーム
子供部屋問題解決リフォームプラン
入口造作
Proudly powered by WordPress